loader-logo
  • Project Year

    2019
  • Cabinetry Style

    Spring Field
  • Cabinetry Color

    stone harbour(2111-50)
  • Countertop Style

    marble

Project Overview

This expansive Victorian had tremendous historic charm but hadn’t seen a kitchen renovation since the 1950s. The homeowners wanted to take advantage of their views of the backyard and raised the roof and pushed the kitchen into the back of the house, where expansive windows could allow southern light into the kitchen all day. A warm historic gray/beige was chosen for the cabinetry, which was contrasted with character oak cabinetry on the appliance wall and bar in a modern chevron detail.

Zoom in details

We designed an elegant way to store items

Check our accessory collection

See how we design other kitchen's storage.
Learn More

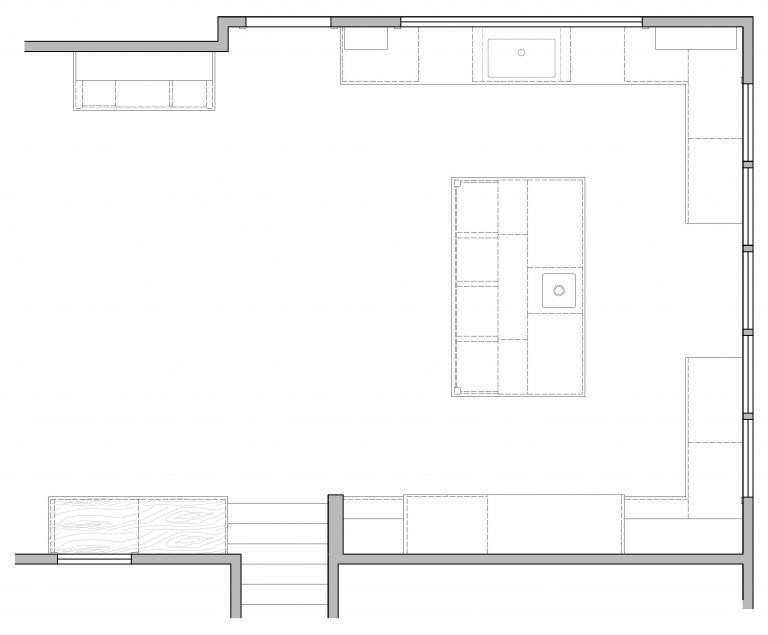
The layout

Open concept kitchen - large transitional l-shaped light wood floor and beige floor open concept kitchen idea with an undermount sink, shaker cabinets, light wood cabinets, marble countertops, white backsplash, marble backsplash, stainless steel appliances, an island and white countertops

Learn Kitchen Design Basics

5 Classic Kitchen Design Layouts
Learn More

Share On
Next