loader-logo

Interior Design

At GNC Design & Build, we believe that exceptional interior design is more than aesthetics — it’s about creating spaces that inspire, comfort, and elevate everyday living.

What We Provide

Are you looking to get building permits for your property? Or are you a professional firm with an overwhelming amount of work & underwhelming amount of staff? GNC Kitchen is here to help you. Our skilled team has the multidisciplinary expertise to provide you with exactly what you need.

Custom Homes

GNC Kitchen, one of the best design-build firms in the GTA, provides you with premium end-to-end custom home solutions that are hassle-free and cost-effective.

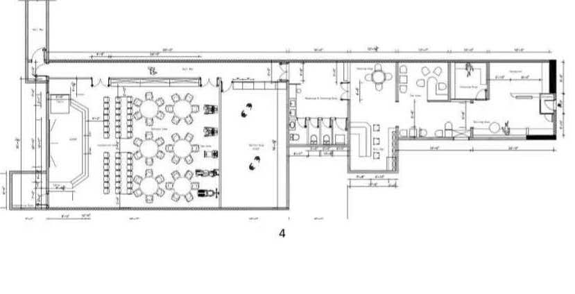
Commercial

GNC Kitchen provides high-quality commercial design & build solutions for business space needs, such as offices, restaurants, hotels, industrial warehouses, and retail shops.

GNC Kitchen’s skilled drafting team produces realistic and immersive 3D renderings and 3D models, concept sketches, floor plans, and shop drawings.

Residential & Commercial Interior Design Toronto